PIM

Edificios sostenibles en Santa Eulàlia

Obra nueva en Hospitalet


Obra nueva ubicada en el barrio de Hospitalet, un barrio que se encuentra en constante evolución posicionándose en cuanto a servicios, cultura y estilo de vida. Este distrito está muy bien comunicado en cuanto a transporte público ofreciendo servicios de metro, buses y ferrocarriles, a su vez, se encuentra a 50m del metro Provençana y a pocos minutos del centro comercial Gran Via.

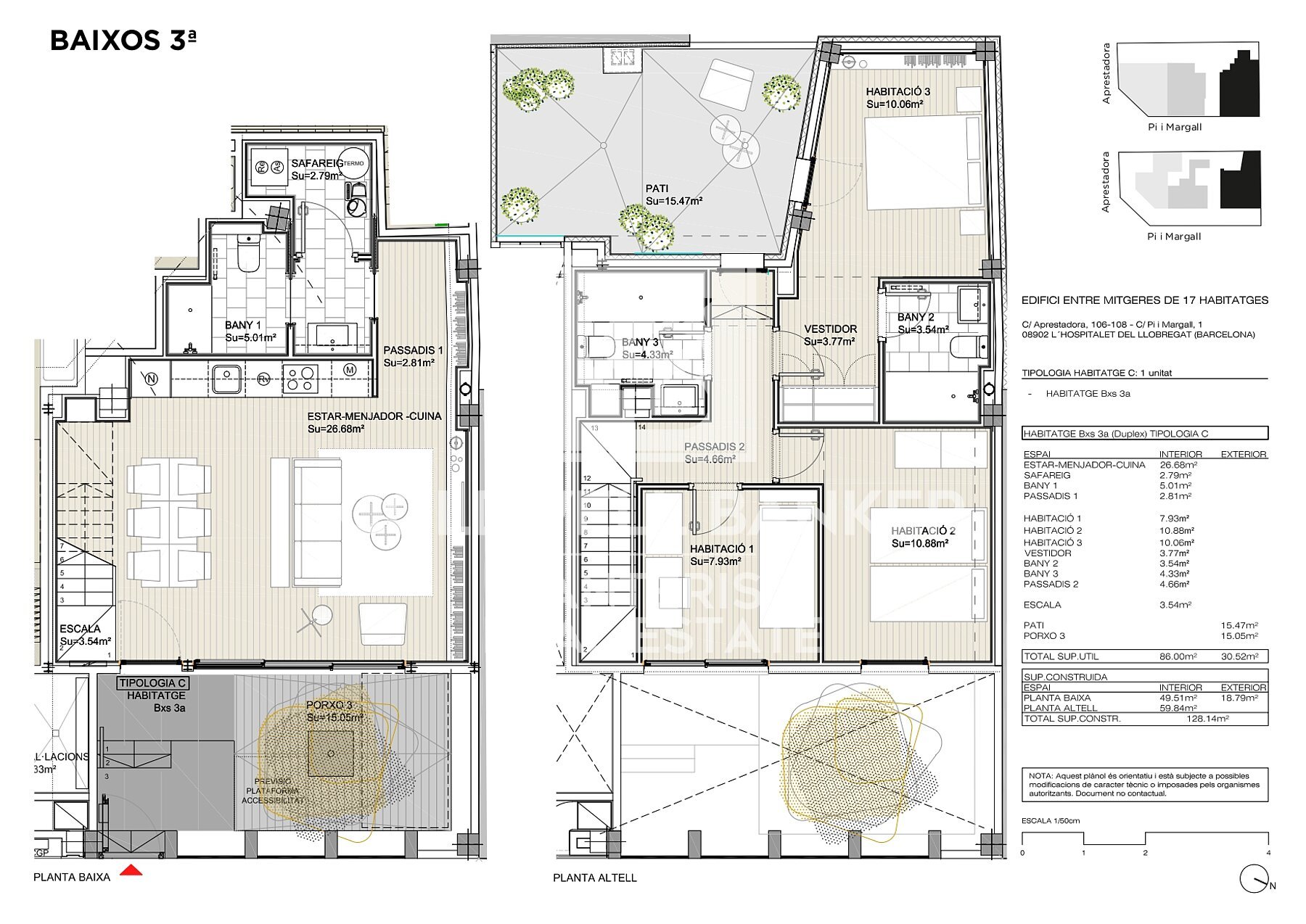
Bajos Dúplex


La vivienda está ubicada en un edificio de obra nueva que está bajo construcción entre las Calle de Aprestadora y Pi i Maragall en Hospitalet. 

Estos Bajos Dúplex cuentan con 2-3 habitaciones y 2-3 baños. Al tratarse de una planta baja, estos apartamentos gozan con un amplio espacio exterior.

La  cocina y salón - comedor tiene acceso directo a la terraza, perfecto para disfrutar con amigos y familia.

Precios a partir de 411.900€

Tour Virtual


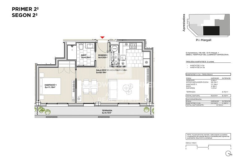
1 Habitación


Este modelo de apartamento es ideal para una persona o una pareja, los apartamentos constan de unos 45m2 + un balcón.

El dormitorio principal, con armarios empotrados tiene acceso al balcón que tiene mucha luz natural.

El apartamento tiene aire acondicionado, armarios empotrados, cocina totalmente equipada...

Precios a partir de 233.500€

Tour Virtual


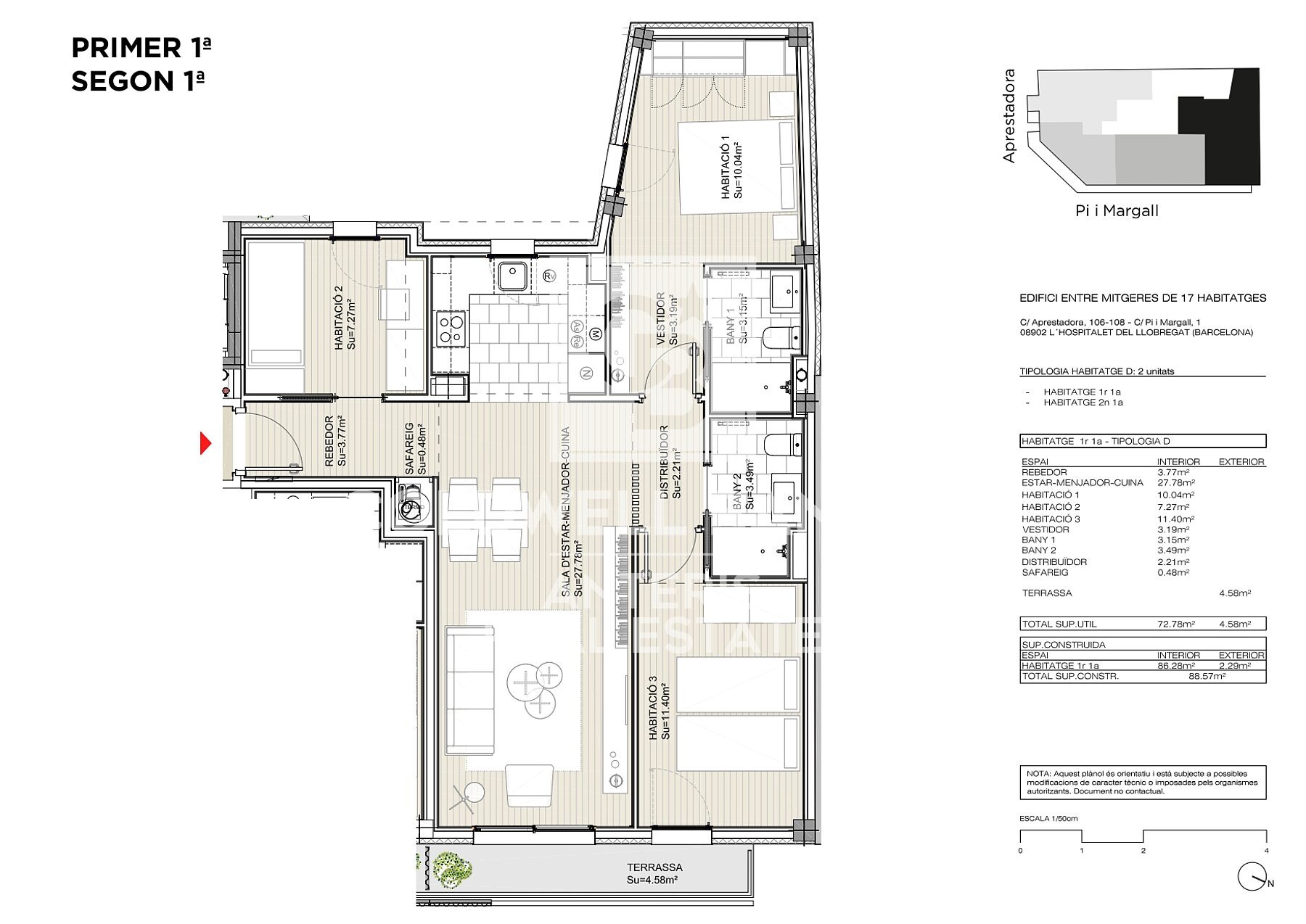
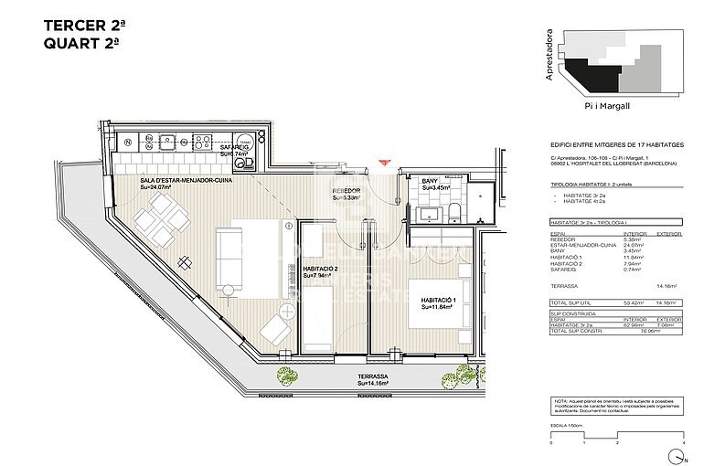
2 Habitaciones


Este modelo de vivienda tiene dos dormitorios, perfecto para parejas o para inversión. Estos apartamentos tienen unos 60m2.

El apartamento se compone de una cocina abierta que se abre al salón-comedor creando un espacio amplio, a su vez, disfrutando de una salida al balcón que ofrece luz natural.

Precio a partir de 289.500€

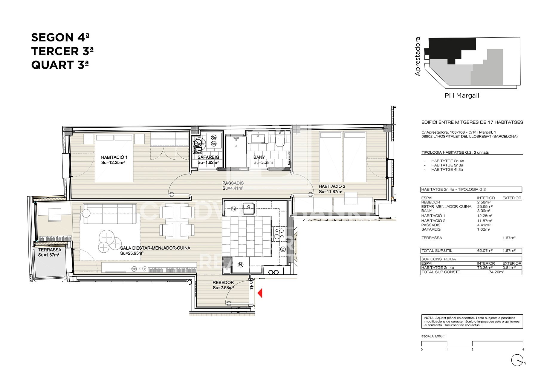
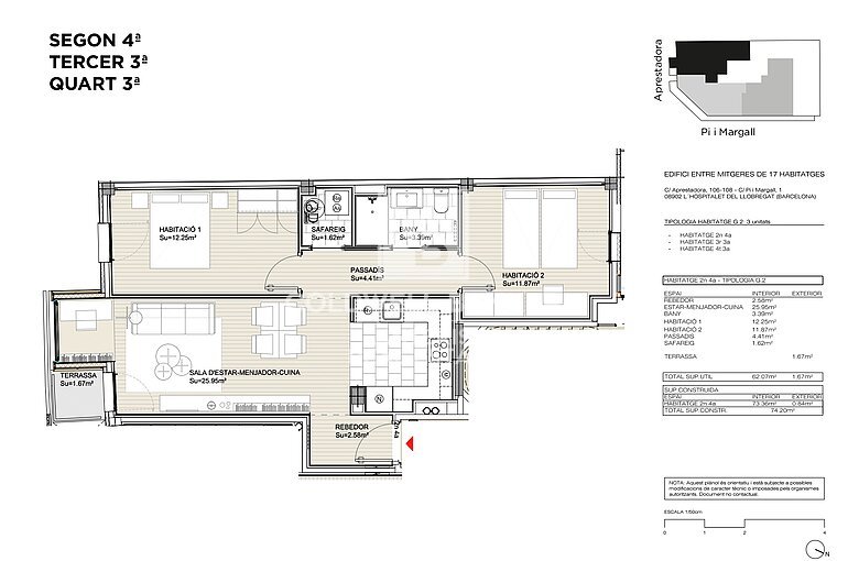
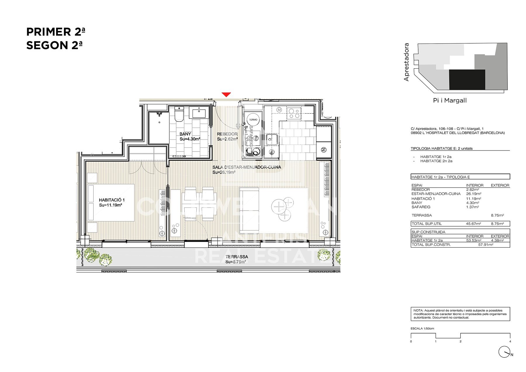
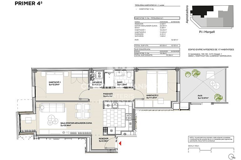
Planos


ViviendasInterior m2Total m2Exterior m2HabitacionesBañosDisponible
Bajo Duplex 183,73121,8115,6522DISPONIBLE
Bajo Duplex 266,4799,08314,6422DISPONIBLE
Bajo Duplex 386,00128,1418,7933DISPONIBLE
1º-1ª72,7888,574,5832DISPONIBLE
1º-2ª45,6757,918,7511DISPONIBLE
1º-3ª43,5857,9111,9111DISPONIBLE
1º-4ª62,0573,3512,9721DISPONIBLE
2º-1ª72,7888,574,5831DISPONIBLE
2º-2ª45,6757,918,7511DISPONIBLE
2º-3ª43,5857,9111,9111DISPONIBLE
2º-4ª62,0774,201,6721DISPONIBLE
3º-1ª60,9676,1459,8521DISPONIBLE
3º-3ª62,0774,201,6721DISPONIBLE
4º-1ª60,9872,676,9421DISPONIBLE
4º-3ª62,0774,201,6721DISPONIBLE

Opcion de parking

Contacto


Step

+34 622 567 647
Cookies

Este sitio web utiliza cookies para mejorar su experiencia mientras navega por el sitio web. De estas, las cookies que se clasifican como necesarias se almacenan en su navegador, ya que son esenciales para el funcionamiento de las funcionalidades básicas del sitio web.

Política de privacidad